Neubau Aufzug

Freie Universität Berlin, Zentrale Universitätsverwaltung
Garystraße 65-69, 14195 Berlin

  • Bauherr: Freie Universität Berlin, Das Präsidium, Techn. Abteilung III
  • Planung / Bauzeit: Jan. – April 2009
  • Leistungsphasen: 1- 8
  • Nutzfläche: 760 m²
  • Bauwerkskosten brutto: 376.000 €
  • Fotos: Adriane Busse

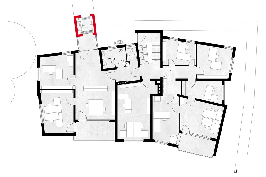
Das Gebäude der Freien Universität Berlin in der Garystraße 69 wurde 1964 vom Architekten Wolfgang Dommer als Gästehaus gebaut. Seit dem temporären Umbau im Jahr 2009 werden die ehemaligen Wohnungen als Büroräume genutzt. Es handelt sich um einen zweigeschossigen freistehenden Bau.
Für Mitarbeiter mit Behinderung sollte ein barrierefreier Zugang der Büroflächen mittels eines Aufzugs ermöglicht werden. Außerdem sollte ein WC behindertengerecht umgebaut werden.
Da es sich um eine temporäre Nutzung als Verwaltungsbau handelt, war es wichtig, dass der Aufzug auch einer späteren Nutzung des Gebäudes als Wohnungsbau gerecht wird. Somit blieb die Struktur des Hauses weitestgehend erhalten. Deshalb wurde der Aufzug vor dem Gebäude positioniert.
Der Fahrstuhlschacht wurde in strukturiertem Sicht-Beton ausgeführt. Glaslamellenfenster sorgen im Bereich der Übergänge für den thermischen Abschluss.